Tổng quan thiết kế nhà phố 2 tầng phong cách tối giản
Trong những năm gần đây, nhà phố 2 tầng phong cách tối giản đang trở thành xu hướng thiết kế được nhiều gia đình trẻ lựa chọn. Kiến trúc này mang đến sự cân bằng giữa thẩm mỹ hiện đại, công năng tối ưu và không gian sống thoải mái.
Công trình nhà phố 2 tầng 240m2 được xây dựng theo triết lý kiến trúc minimalism – tập trung vào sự đơn giản, tinh tế nhưng vẫn đảm bảo tính tiện nghi.
Ngôi nhà được bố trí không gian mở, tận dụng tối đa ánh sáng tự nhiên, kết hợp vật liệu gỗ và đá tự nhiên để tạo nên một không gian sống hiện đại nhưng vẫn ấm áp.
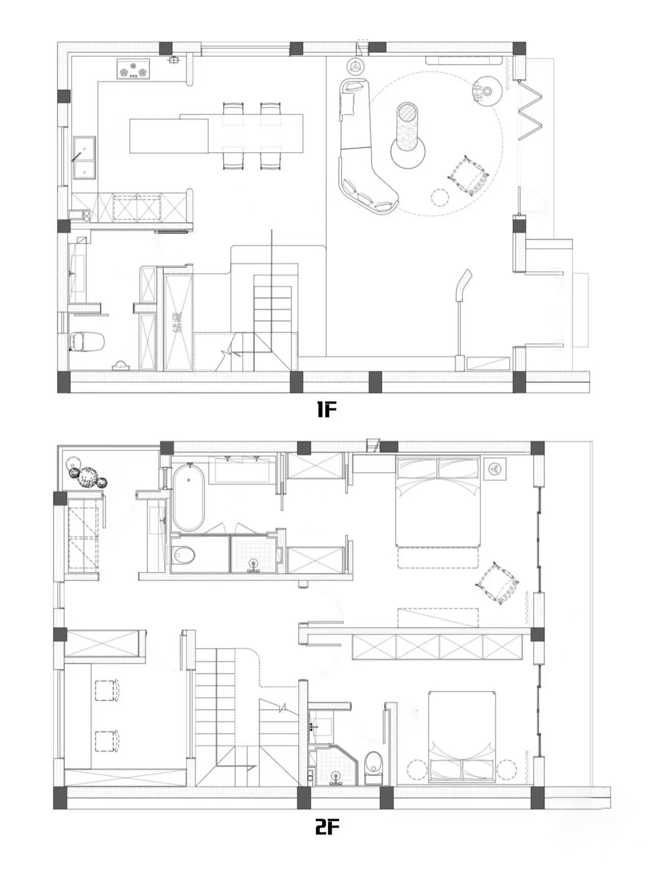
Diện tích: 240m²
Phong cách: Minimalist – Modern



Layout chiếc nhà phố 2 tầng siêu hợp gu các nàng:

Kiến trúc ngoại thất nhà phố 2 tầng hiện đại
Ngoại thất của nhà phố 2 tầng được thiết kế theo phong cách tối giản với các đường nét hình khối rõ ràng và gọn gàng.
Mặt tiền sử dụng tông màu trắng chủ đạo kết hợp hệ cửa kính lớn giúp không gian trở nên thoáng đãng và sang trọng.
Những điểm nổi bật của thiết kế ngoại thất:
- Mặt tiền nhà phố 2 tầng hiện đại
- Ban công rộng thoáng
- Hệ cửa kính lớn đón ánh sáng
- Thiết kế hình khối kiến trúc tối giản
Thiết kế này không chỉ giúp ngôi nhà đẹp hơn mà còn giúp tối ưu ánh sáng và thông gió tự nhiên.



Không gian phòng khách trong nhà phố 2 tầng
Phòng khách của nhà phố 2 tầng được thiết kế theo phong cách minimalism kết hợp Japandi, mang lại cảm giác ấm áp và thư giãn.
Không gian sử dụng các tông màu trung tính như:
- trắng
- kem
- nâu gỗ
Các chi tiết nội thất được lựa chọn tinh giản nhưng tinh tế.
Điểm nhấn của phòng khách:
- sofa lớn tone màu sáng
- bàn trà gỗ tròn tối giản
- lò sưởi treo hiện đại
- cửa kính lớn mở ra sân
Thiết kế cửa kính lớn giúp phòng khách luôn tràn ngập ánh sáng tự nhiên và tạo cảm giác không gian rộng hơn.



Thiết kế gian bếp – Trái tim của ngôi nhà
Khu bếp của nhà phố 2 tầng được bố trí theo dạng không gian mở, kết nối trực tiếp với phòng khách và phòng ăn.
Thiết kế này giúp tăng sự kết nối giữa các thành viên trong gia đình.
Điểm nổi bật của khu bếp:
- đá marble sang trọng
- tủ bếp gỗ tự nhiên
- bàn ăn gỗ hiện đại
- hệ đèn thả trần tinh tế
Sự kết hợp giữa đá và gỗ mang lại vẻ đẹp hiện đại nhưng vẫn giữ được sự ấm cúng cho không gian.






Phòng ngủ trong nhà phố 2 tầng
Phòng ngủ được thiết kế theo phong cách tối giản, tập trung vào sự thoải mái và thư giãn.
Không gian phòng ngủ của nhà phố 2 tầng sử dụng nội thất gọn gàng, màu sắc trung tính và ánh sáng tự nhiên.
Thiết kế bao gồm:
- giường ngủ tối giản
- cửa kính lớn
- rèm cửa mềm mại
- hệ đèn ánh sáng vàng
Nhờ thiết kế này, phòng ngủ luôn mang lại cảm giác yên tĩnh và thư giãn.


Work Space
Không gian làm việc được thiết kế gọn gàng và tối ưu công năng.
- Kệ trang trí tối giản
- Không gian mở giúp tăng sự sáng tạo


Rest room & khu giặt phơi
Phòng tắm được thiết kế như một không gian spa thư giãn.
Không gian mang lại cảm giác thư giãn tuyệt đối sau một ngày dài.




Lợi ích khi xây dựng nhà phố 2 tầng
Thiết kế nhà phố 2 tầng mang lại nhiều lợi ích cho gia chủ:
- tối ưu diện tích xây dựng
- chi phí xây dựng hợp lý
- dễ bố trí công năng
- phù hợp với nhà phố đô thị
- kiến trúc hiện đại và sang trọng
Đây là lý do vì sao nhà phố 2 tầng luôn là lựa chọn phổ biến trong các khu đô thị hiện nay.
TRIẾT LÝ THIẾT KẾ CỦA GIA PHẠM HOMES
Gia Phạm Homes luôn theo đuổi triết lý:
Thiết kế tối giản – tối đa trải nghiệm
- Công năng tối ưu
- Không gian mở
- Ánh sáng tự nhiên
- Vật liệu bền vững
- Thẩm mỹ tinh tế
Mỗi công trình không chỉ là một ngôi nhà, mà là một không gian sống có cảm xúc.
VÌ SAO NÊN CHỌN GIA PHẠM HOMES
✔ Thiết kế kiến trúc sáng tạo
✔ Thi công trọn gói chuyên nghiệp
✔ Nội thất đồng bộ cao cấp
✔ Quy trình rõ ràng minh bạch
✔ Bảo hành dài hạn
Gia Phạm Homes cam kết mang đến những không gian sống chuẩn mực – đẳng cấp – bền vững.
THÔNG TIN LIÊN HỆ
Gia Phạm Homes | Thiết kế kiến trúc – Thi công trọn gói – Nội thất cao cấp
Hotline: 0353 067 227
Website: giaphamhomes.vn
Email: work.giaphamhomes@gmail.com
Văn phòng: 296 Nguyễn Văn Đậu, Bình Lợi Trung, Hồ Chí Minh
Fanpage Facebook: Gia Pham Homes Architectural & Interior



CÔNG TY TNHH GIA PHẠM HOMES
GIA PHAM HOMES COMPANY LIMITED
Vui lòng liên hệ: 147/10/7 Lý Tế Xuyên, Phường Linh Đông, Thành phố Thủ Đức, Thành phố Hồ Chí Minh
Điện thoại: 0968.617.368
Website: www.giaphamhomes.vn